1 .·¶Î§
±¾±ê×¼¹æ¶¨Á˵³Õþ»ú¹Ø¹«ÎÄͨÓõÄÖ½ÕÅÒªÇó¡¢ÅŰæºÍӡ֯װ¶©ÒªÇó¡¢¹«Îĸñʽ¸÷ÒªËØµÄ±àÅŹæÔò£¬²¢¸ø³öÁ˹«ÎĵÄʽÑù¡£
±¾±ê×¼ÊÊÓÃÓÚ¸÷¼¶µ³Õþ»ú¹ØÖÆ·¢µÄ¹«ÎÄ¡£ÆäËû»ú¹ØºÍµ¥Î»µÄ¹«ÎÄ¿ÉÒÔ²ÎÕÕÖ´ÐС£
ʹÓÃÉÙÊýÃñ×åÎÄ×ÖÓ¡ÖÆµÄ¹«ÎÄ£¬ÆäÓÃÖ½¡¢·ùÃæ³ß´ç¼°°æÃæ¡¢Ó¡ÖÆµÈÒªÇó°´ÕÕ±¾±ê×¼Ö´ÐУ¬ÆäÓà¿ÉÒÔ²ÎÕÕ±¾±ê×¼²¢°´ÕÕÓйع涨ִÐС£
2 .¹æ·¶ÐÔÒýÓÃÎļþ
ÏÂÁÐÎļþ¶ÔÓÚ±¾±ê×¼µÄÓ¦ÓÃÊDZز»¿ÉÉٵġ£·²ÊÇ×¢ÈÕÆÚµÄÒýÓÃÎļþ£¬½öËù×¢ÈÕÆÚµÄ°æ±¾ÊÊÓÃÓÚ±¾±ê×¼¡£·²ÊDz»×¢ÈÕÆÚµÄÒýÓÃÎļþ£¬Æä×îа汾£¨°üÀ¨ËùÓеÄÐ޸ĵ¥£©ÊÊÓÃÓÚ±¾±ê×¼¡£
GB/T 148 Ó¡Ë¢¡¢ÊéдºÍ»æÍ¼Ö½·ùÃæ³ß´ç
GB 3100 ¹ú¼Êµ¥Î»ÖƼ°ÆäÓ¦ÓÃ
GB 3101 ÓйØÁ¿¡¢µ¥Î»ºÍ·ûºÅµÄÒ»°ãÔÔò
GB 3102£¨ËùÓв¿·Ö£© Á¿ºÍµ¥Î»
GB/T 15834 ±êµã·ûºÅÓ÷¨
GB/T 15835 ³ö°æÎïÉÏÊý×ÖÓ÷¨
3 .ÊõÓïºÍ¶¨Òå
ÏÂÁÐÊõÓïºÍ¶¨ÒåÊÊÓÃÓÚ±¾±ê×¼¡£ 3. 1 ×Ö word
±êʾ¹«ÎÄÖкáÏò¾àÀëµÄ³¤¶Èµ¥Î»¡£ÔÚ±¾±ê×¼ÖУ¬Ò»×ÖÖ¸Ò»¸öºº×Ö¿í¶ÈµÄ¾àÀë¡£ 3. 2 ÐÐ line
±êʾ¹«ÎÄÖÐ×ÝÏò¾àÀëµÄ³¤¶Èµ¥Î»¡£ÔÚ±¾±ê×¼ÖУ¬Ò»ÐÐÖ¸Ò»¸öºº×ֵĸ߶ȼÓ3ºÅºº×ָ߶ȵÄ7/8µÄ¾àÀë¡£
4 .·¶Î§¹«ÎÄÓÃÖ½Ö÷Òª¼¼ÊõÖ¸±ê
¹«ÎÄÓÃÖ½Ò»°ãʹÓÃÖ½ÕŶ¨Á¿Îª60 g/m2~80 g/m2µÄ½º°æÓ¡Ë¢Ö½»ò¸´Ó¡Ö½¡£Ö½ÕŰ׶È80£¥~90%£¬ºáÏòÄÍÕÛ¶È¡Ý15´Î£¬²»Í¸Ã÷¶È¡Ý85%£¬pHֵΪ7.5~9.5¡£
5. ¹«ÎÄÓÃÖ½·ùÃæ³ß´ç¼°°æÃæÒªÇó
5. 1 ·ùÃæ³ß´ç
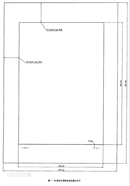
¹«ÎÄÓÃÖ½²ÉÓÃGB/T 148Öй涨µÄA4ÐÍÖ½£¬Æä³ÉÆ··ùÃæ³ß´çΪ£º210 mm×297 mm. 5.2 °æÃæ
5.2.1 Ò³±ßÓë°æÐijߴç
¹«ÎÄÓÃÖ½ÌìÍ·£¨Éϰױߣ©Îª37 mm±1 mm,¹«ÎÄÓÃÖ½¶©¿Ú£¨×ó°×±ß£©Îª28mm±1mm,°æÐijߴçΪ156 mm×225 mm.
5.2.2 ×ÖÌåºÍ×ÖºÅ
ÈçÎÞÌØÊâ˵Ã÷£¬¹«Îĸñʽ¸÷ÒªËØÒ»°ãÓÃ3ºÅ·ÂËÎÌå×Ö¡£Ìض¨Çé¿ö¿ÉÒÔ×÷Êʵ±µ÷Õû¡£
5.2.3 ÐÐÊýºÍ×ÖÊý
Ò»°ãÃ¿ÃæÅÅ22ÐУ¬Ã¿ÐÐÅÅ28¸ö×Ö£¬²¢³ÅÂú°æÐÄ¡£Ìض¨Çé¿ö¿ÉÒÔ×÷Êʵ±µ÷Õû¡£
5.2.4 ÎÄ×ÖµÄÑÕÉ«
ÈçÎÞÌØÊâ˵Ã÷£¬¹«ÎÄÖÐÎÄ×ÖµÄÑÕÉ«¾ùΪºÚÉ«¡£
6. ӡ֯װ¶©ÒªÇó
6.1 ÖÆ°æÒªÇó
°æÃæ¸É¾»ÎÞµ×»Ò£¬×Ö¼£Çå³þÎÞ¶Ï»®£¬³ß´ç±ê×¼£¬°æÐIJ»Ð±£¬Îó²î²»³¬¹ý1 mm. 6.2 Ó¡Ë¢ÒªÇó
Ë«ÃæÓ¡Ë¢£»Ò³ÂëÌ×Õý£¬Á½ÃæÎó²î²»³¬¹ý2mm.ºÚÉ«ÓÍīӦµ±´ïµ½É«Æ×Ëù±êBL100%,ºìÉ«ÓÍīӦµ±´ïµ½É«Æ×Ëù±êY80%¡¢M80%.Ó¡Æ·×Åīʵ¡¢¾ùÔÈ£»×ÖÃæ²»»¨¡¢²»°×¡¢ÎÞ¶Ï»®¡£ 6.3 ×°¶©ÒªÇó
¹«ÎÄÓ¦µ±×ó²à×°¶©£¬²»µôÒ³£¬Á½Ò³Ò³ÂëÖ®¼äÎó²î²»³¬¹ý4 mm,²ÃÇкóµÄ³ÉÆ·³ß´çÔÊÐíÎó²î±2mm,ËĽdzÉ90°£¬ÎÞë²ç»òȱËð¡£
ÆïÂí¶©»òƽ¶©µÄ¹«ÎÄÓ¦µ±£º
£¨a£©¶©Î»ÎªÁ½¶¤Íâ¶©ÑÛ¾à°æÃæÉÏϱßÔµ¸÷70mm´¦£¬ÔÊÐíÎó²î±4mm;
£¨b£©ÎÞ»µ¶¤¡¢Â©¶¤¡¢Öض¤£¬¶¤½Åƽ·üÀι̣»
£¨c£©ÆïÂí¶©¶¤¾â¾ù¶©ÔÚÕÛ·ìÏßÉÏ£¬Æ½¶©¶¤¾âÓëÊé¼¹¼äµÄ¾àÀëΪ3mm--5mm.
°ü±¾×°¶©¹«ÎÄµÄ·âÆ¤£¨·âÃæ¡¢Êé¼¹¡¢·âµ×£©ÓëÊéоӦÎǺϡ¢°ü½ô¡¢°üƽ¡¢²»ÍÑÂä¡£
7 .¹«Îĸñʽ¸÷ÒªËØ±àÅŹæÔò
7.1 ¹«Îĸñʽ¸÷ÒªËØµÄ»®·Ö
±¾±ê×¼½«°æÐÄÄڵĹ«Îĸñʽ¸÷ÒªËØ»®·ÖΪ°æÍ·¡¢Ö÷Ìå¡¢°æ¼ÇÈý²¿·Ö¡£¹«ÎÄÎ÷ºþ¹ú¼Ê¹ÙÍøºìÉ«·Ö¸ôÏßÒÔÉϵIJ¿·Ö³ÆÎª°æÍ·£»¹«ÎÄÎ÷ºþ¹ú¼Ê¹ÙÍøºìÉ«·Ö¸ôÏߣ¨²»º¬£©ÒÔÏ¡¢¹«ÎÄĩҳÊ×Ìõ·Ö¸ôÏߣ¨²»º¬£©ÒÔÉϵIJ¿·Ö³ÆÎªÖ÷Ì壻¹«ÎÄĩҳÊ×Ìõ·Ö¸ôÏßÒÔÏ¡¢Ä©Ìõ·Ö¸ôÏßÒÔÉϵIJ¿·Ö³ÆÎª°æ¼Ç¡£
Ò³ÂëλÓÚ°æÐÄÍâ¡£

7.2 °æÍ·
7.2.1 ·ÝºÅ
ÈçÐè±ê×¢·ÝºÅ£¬Ò»°ãÓÃ6λ3ºÅ°¢À²®Êý×Ö£¬¶¥¸ñ±àÅÅÔÚ°æÐÄ×óÉϽǵÚÒ»ÐС£
7.2.2 Ãܼ¶ºÍ±£ÃÜÆÚÏÞ
ÈçÐè±ê×¢Ãܼ¶ºÍ±£ÃÜÆÚÏÞ£¬Ò»°ãÓÃ3ºÅºÚÌå×Ö£¬¶¥¸ñ±àÅÅÔÚ°æÐÄ×óÉϽǵڶþÐУ»±£ÃÜÆÚÏÞÖеÄÊý×ÖÓð¢À²®Êý×Ö±ê×¢¡£
7.2.3 ½ô¼±³Ì¶È
ÈçÐè±ê×¢½ô¼±³Ì¶È£¬Ò»°ãÓÃ3ºÅºÚÌå×Ö£¬¶¥¸ñ±àÅÅÔÚ°æÐÄ×óÉϽǣ»ÈçÐèͬʱ±ê×¢·ÝºÅ¡¢Ãܼ¶ºÍ±£ÃÜÆÚÏÞ¡¢½ô¼±³Ì¶È£¬°´Õշݺš¢Ãܼ¶ºÍ±£ÃÜÆÚÏÞ¡¢½ô¼±³Ì¶ÈµÄ˳Ðò×ÔÉ϶øÏ·ÖÐÐÅÅÁС£
7.2.4 ·¢ÎÄ»ú¹Ø±êÖ¾
ÓÉ·¢ÎÄ»ú¹ØÈ«³Æ»òÕ߹淶»¯¼ò³Æ¼Ó"Îļþ"¶þ×Ö×é³É£¬Ò²¿ÉÒÔʹÓ÷¢ÎÄ»ú¹ØÈ«³Æ»òÕ߹淶»¯¼ò³Æ¡£
·¢ÎÄ»ú¹Ø±êÖ¾¾ÓÖÐÅŲ¼£¬ÉϱßÔµÖÁ°æÐÄÉϱßԵΪ35mm,ÍÆ¼öʹÓÃС±êËÎÌå×Ö£¬ÑÕɫΪºìÉ«£¬ÒÔÐÑÄ¿¡¢ÃÀ¹Û¡¢×¯ÖØÎªÔÔò¡£
ÁªºÏÐÐÎÄʱ£¬ÈçÐèͬʱ±ê×¢ÁªÊð·¢ÎÄ»ú¹ØÃû³Æ£¬Ò»°ãÓ¦µ±½«Ö÷°ì»ú¹ØÃû³ÆÅÅÁÐÔÚǰ£»ÈçÓÐ"Îļþ"¶þ×Ö£¬Ó¦µ±ÖÃÓÚ·¢ÎÄ»ú¹ØÃû³ÆÓҲ࣬ÒÔÁªÊð·¢ÎÄ»ú¹ØÃû³ÆÎª×¼ÉÏϾÓÖÐÅŲ¼¡£
7.2.5 ·¢ÎÄ×ÖºÅ
±àÅÅÔÚ·¢ÎÄ»ú¹Ø±ê־ϿնþÐÐλÖ㬾ÓÖÐÅŲ¼¡£Äê·Ý¡¢·¢ÎÄ˳ÐòºÅÓð¢À²®Êý×Ö±ê×¢£»Äê·ÝÓ¦±êÈ«³Æ£¬ÓÃÁù½ÇÀ¨ºÅ"¡²¡³"À¨È룻·¢ÎÄ˳ÐòºÅ²»¼Ó"µÚ"×Ö£¬²»±àÐé루¼´1²»±àΪ01£©£¬ÔÚ°¢À²®Êý×Öºó¼Ó"ºÅ"×Ö¡£
ÉÏÐÐÎĵķ¢ÎÄ×ֺžÓ×ó¿ÕÒ»×Ö±àÅÅ£¬Óë×îºóÒ»¸öÇ©·¢ÈËÐÕÃû´¦ÔÚͬһÐС£
7.2.6 Ç©·¢ÈË
ÓÉ"Ç©·¢ÈË"Èý×Ö¼ÓÈ«½ÇðºÅºÍÇ©·¢ÈËÐÕÃû×é³É£¬¾ÓÓÒ¿ÕÒ»×Ö£¬±àÅÅÔÚ·¢ÎÄ»ú¹Ø±ê־ϿնþÐÐλÖá£"Ç©·¢ÈË"Èý×ÖÓÃ3ºÅ·ÂËÎÌå×Ö£¬Ç©·¢ÈËÐÕÃûÓÃ3ºÅ¿¬Ìå×Ö¡£
ÈçÓжà¸öÇ©·¢ÈË£¬Ç©·¢ÈËÐÕÃû°´ÕÕ·¢ÎÄ»ú¹ØµÄÅÅÁÐ˳Ðò´Ó×óµ½ÓÒ¡¢×ÔÉ϶øÏÂÒÀ´Î¾ùÔȱàÅÅ£¬Ò»°ãÿÐÐÅÅÁ½¸öÐÕÃû£¬»ØÐÐʱÓëÉÏÒ»ÐеÚÒ»¸öÇ©·¢ÈËÐÕÃû¶ÔÆë¡£
7.2.7 °æÍ·ÖеķָôÏß
·¢ÎÄ×ÖºÅÖ®ÏÂ4mm´¦¾ÓÖÐÓ¡Ò»ÌõÓë°æÐĵȿíµÄºìÉ«·Ö¸ôÏß¡£ 7.3 Ö÷Ìå
7.3.1 ±êÌâ
Ò»°ãÓÃ2ºÅС±êËÎÌå×Ö£¬±àÅÅÓÚºìÉ«·Ö¸ôÏßÏ¿նþÐÐλÖ㬷ÖÒ»Ðлò¶àÐоÓÖÐÅŲ¼£»»ØÐÐʱ£¬Òª×öµ½´ÊÒâÍêÕû£¬ÅÅÁжԳƣ¬³¤¶ÌÊÊÒË£¬¼ä¾àÇ¡µ±£¬±êÌâÅÅÁÐÓ¦µ±Ê¹ÓÃÌÝÐλòÁâÐΡ£
7.3.2 Ö÷ËÍ»ú¹Ø
±àÅÅÓÚ±êÌâÏ¿ÕÒ»ÐÐλÖ㬾Ó×󶥸ñ£¬»ØÐÐʱÈÔ¶¥¸ñ£¬×îºóÒ»¸ö»ú¹ØÃû³Æºó±êÈ«½ÇðºÅ¡£ÈçÖ÷ËÍ»ú¹ØÃû³Æ¹ý¶àµ¼Ö¹«ÎÄÎ÷ºþ¹ú¼Ê¹ÙÍø²»ÄÜÏÔʾÕýÎÄʱ£¬Ó¦µ±½«Ö÷ËÍ»ú¹ØÃû³ÆÒÆÖÁ°æ¼Ç£¬±ê×¢·½·¨¼û7.4.2.
7.3.3 ÕýÎÄ
¹«ÎÄÎ÷ºþ¹ú¼Ê¹ÙÍø±ØÐëÏÔʾÕýÎÄ¡£Ò»°ãÓÃ3ºÅ·ÂËÎÌå×Ö£¬±àÅÅÓÚÖ÷ËÍ»ú¹ØÃû³ÆÏÂÒ»ÐУ¬Ã¿¸ö×ÔÈ»¶Î×ó¿Õ¶þ×Ö£¬»ØÐж¥¸ñ¡£ÎÄÖнṹ²ã´ÎÐòÊýÒÀ´Î¿ÉÒÔÓÃ"Ò»¡¢""£¨Ò»£©""1.""£¨1£©"±ê×¢£»Ò»°ãµÚÒ»²ãÓúÚÌå×Ö¡¢µÚ¶þ²ãÓÿ¬Ìå×Ö¡¢µÚÈý²ãºÍµÚËIJãÓ÷ÂËÎÌå×Ö±ê×¢¡£
7.3.4 ¸½¼þ˵Ã÷
ÈçÓи½¼þ£¬ÔÚÕýÎÄÏ¿ÕÒ»ÐÐ×ó¿Õ¶þ×Ö±àÅÅ"¸½¼þ"¶þ×Ö£¬ºó±êÈ«½ÇðºÅºÍ¸½¼þÃû³Æ¡£ÈçÓжà¸ö¸½¼þ£¬Ê¹Óð¢À²®Êý×Ö±ê×¢¸½¼þ˳ÐòºÅ£¨Èç"¸½¼þ£º1. XXXXX"£©£»¸½¼þÃû³Æºó²»¼Ó±êµã·ûºÅ¡£¸½¼þÃû³Æ½Ï³¤Ðè»ØÐÐʱ£¬Ó¦µ±ÓëÉÏÒ»Ðи½¼þÃû³ÆµÄÊ××Ö¶ÔÆë¡£
7.3.5 ·¢ÎÄ»ú¹ØÊðÃû¡¢³ÉÎÄÈÕÆÚºÍÓ¡ÕÂ
¡¡¡¡
7.3.5.1 ¼Ó¸ÇÓ¡ÕµĹ«ÎÄ
³ÉÎÄÈÕÆÚÒ»°ãÓÒ¿ÕËÄ×Ö±àÅÅ£¬Ó¡ÕÂÓúìÉ«£¬²»µÃ³öÏÖ¿Õ°×Ó¡Õ¡£
µ¥Ò»»ú¹ØÐÐÎÄʱ£¬Ò»°ãÔÚ³ÉÎÄÈÕÆÚÖ®ÉÏ¡¢ÒÔ³ÉÎÄÈÕÆÚΪ׼¾ÓÖбàÅÅ·¢ÎÄ»ú¹ØÊðÃû£¬Ó¡Õ¶ËÕý¡¢¾ÓÖÐÏÂѹ·¢ÎÄ»ú¹ØÊðÃûºÍ³ÉÎÄÈÕÆÚ£¬Ê¹·¢ÎÄ»ú¹ØÊðÃûºÍ³ÉÎÄÈÕÆÚ¾ÓÓ¡ÕÂÖÐÐÄÆ«ÏÂλÖã¬Ó¡Õ¶¥¶ËÓ¦µ±ÉϾàÕýÎÄ£¨»ò¸½¼þ˵Ã÷£©Ò»ÐÐÖ®ÄÚ¡£
ÁªºÏÐÐÎÄʱ£¬Ò»°ã½«¸÷·¢ÎÄ»ú¹ØÊðÃû°´ÕÕ·¢ÎÄ»ú¹ØË³ÐòÕûÆëÅÅÁÐÔÚÏàӦλÖ㬲¢½«Ó¡ÕÂÒ»Ò»¶ÔÓ¦¡¢¶ËÕý¡¢¾ÓÖÐÏÂѹ·¢ÎÄ»ú¹ØÊðÃû£¬×îºóÒ»¸öÓ¡Õ¶ËÕý¡¢¾ÓÖÐÏÂѹ·¢ÎÄ»ú¹ØÊðÃûºÍ³ÉÎÄÈÕÆÚ£¬Ó¡ÕÂÖ®¼äÅÅÁÐÕûÆë¡¢»¥²»Ïཻ»òÏàÇУ¬Ã¿ÅÅÓ¡ÕÂÁ½¶Ë²»µÃ³¬³ö°æÐÄ£¬Ê×ÅÅÓ¡Õ¶¥¶ËÓ¦µ±ÉϾàÕýÎÄ£¨»ò¸½¼þ˵Ã÷£©Ò»ÐÐÖ®ÄÚ¡£
7.3.5.2 ²»¼Ó¸ÇÓ¡ÕµĹ«ÎÄ
µ¥Ò»»ú¹ØÐÐÎÄʱ£¬ÔÚÕýÎÄ£¨»ò¸½¼þ˵Ã÷£©Ï¿ÕÒ»ÐÐÓÒ¿Õ¶þ×Ö±àÅÅ·¢ÎÄ»ú¹ØÊðÃû£¬ÔÚ·¢ÎÄ»ú¹ØÊðÃûÏÂÒ»ÐбàÅųÉÎÄÈÕÆÚ£¬Ê××ֱȷ¢ÎÄ»ú¹ØÊðÃûÊ××ÖÓÒÒÆ¶þ×Ö£¬Èç³ÉÎÄÈÕÆÚ³¤ÓÚ·¢ÎÄ»ú¹ØÊðÃû£¬Ó¦µ±Ê¹³ÉÎÄÈÕÆÚÓÒ¿Õ¶þ×Ö±àÅÅ£¬²¢ÏàÓ¦Ôö¼Ó·¢ÎÄ»ú¹ØÊðÃûÓÒ¿Õ×ÖÊý¡£
ÁªºÏÐÐÎÄʱ£¬Ó¦µ±ÏȱàÅÅÖ÷°ì»ú¹ØÊðÃû£¬ÆäÓà·¢ÎÄ»ú¹ØÊðÃûÒÀ´ÎÏòϱàÅÅ¡£
7.3.5.3 ¼Ó¸ÇÇ©·¢ÈËÇ©ÃûÕµĹ«ÎÄ
µ¥Ò»»ú¹ØÖÆ·¢µÄ¹«ÎļӸÇÇ©·¢ÈËÇ©ÃûÕÂʱ£¬ÔÚÕýÎÄ£¨»ò¸½¼þ˵Ã÷£©Ï¿նþÐÐÓÒ¿ÕËÄ×Ö¼Ó¸ÇÇ©·¢ÈËÇ©ÃûÕ£¬Ç©ÃûÕÂ×ó¿Õ¶þ×Ö±êעǩ·¢ÈËÖ°Îñ£¬ÒÔÇ©ÃûÕÂΪ׼ÉÏϾÓÖÐÅŲ¼¡£ÔÚÇ©·¢ÈËÇ©ÃûÕÂÏ¿ÕÒ»ÐÐÓÒ¿ÕËÄ×Ö±àÅųÉÎÄÈÕÆÚ¡£
ÁªºÏÐÐÎÄʱ£¬Ó¦µ±ÏȱàÅÅÖ÷°ì»ú¹ØÇ©·¢ÈËÖ°Îñ¡¢Ç©ÃûÕ£¬ÆäÓà»ú¹ØÇ©·¢ÈËÖ°Îñ¡¢Ç©ÃûÕÂÒÀ´ÎÏòϱàÅÅ£¬ÓëÖ÷°ì»ú¹ØÇ©·¢ÈËÖ°Îñ¡¢Ç©ÃûÕÂÉÏÏÂ¶ÔÆë£»Ã¿ÐÐÖ»±àÅÅÒ»¸ö»ú¹ØµÄÇ©·¢ÈËÖ°Îñ¡¢Ç©ÃûÕ£»Ç©·¢ÈËÖ°ÎñÓ¦µ±±êעȫ³Æ¡£
Ç©ÃûÕÂÒ»°ãÓúìÉ«¡£
7.3.5.4 ³ÉÎÄÈÕÆÚÖеÄÊý×Ö
Óð¢À²®Êý×Ö½«Äê¡¢Ô¡¢ÈÕ±êÈ«£¬Äê·ÝÓ¦±êÈ«³Æ£¬Ô¡¢ÈÕ²»±àÐé루¼´1²»±àΪ01£©¡£
7.3.5.5 ÌØÊâÇé¿ö˵Ã÷
µ±¹«ÎÄÅŰæºóËùÊ£¿Õ°×´¦²»ÄÜÈÝÏÂÓ¡Õ»òÇ©·¢ÈËÇ©ÃûÕ¡¢³ÉÎÄÈÕÆÚʱ£¬¿ÉÒÔ²ÉÈ¡µ÷ÕûÐоࡢ×Ö¾àµÄ´ëÊ©½â¾ö¡£
7.3.6 ¸½×¢
ÈçÓи½×¢£¬¾Ó×ó¿Õ¶þ×Ö¼ÓÔ²À¨ºÅ±àÅÅÔÚ³ÉÎÄÈÕÆÚÏÂÒ»ÐС£
7.3.7 ¸½¼þ
¸½¼þÓ¦µ±ÁíÃæ±àÅÅ£¬²¢ÔÚ°æ¼Ç֮ǰ£¬Ó빫ÎÄÕýÎÄÒ»Æð×°¶©¡£"¸½¼þ"¶þ×Ö¼°¸½¼þ˳ÐòºÅÓÃ3ºÅºÚÌå×Ö¶¥¸ñ±àÅÅÔÚ°æÐÄ×óÉϽǵÚÒ»ÐС£¸½¼þ±êÌâ¾ÓÖбàÅÅÔÚ°æÐĵÚÈýÐС£¸½¼þ˳ÐòºÅºÍ¸½¼þ±êÌâÓ¦µ±Ó븽¼þ˵Ã÷µÄ±íÊöÒ»Ö¡£¸½¼þ¸ñʽҪÇóͬÕýÎÄ¡£
È總¼þÓëÕýÎIJ»ÄÜÒ»Æð×°¶©£¬Ó¦µ±ÔÚ¸½¼þ×óÉϽǵÚÒ»Ðж¥¸ñ±àÅŹ«Îĵķ¢ÎÄ×ֺŲ¢ÔÚÆäºó±ê×¢"¸½¼þ"¶þ×Ö¼°¸½¼þ˳ÐòºÅ¡£ 7.4 °æ¼Ç
7.4.1 °æ¼ÇÖеķָôÏß
°æ¼ÇÖеķָôÏßÓë°æÐÄµÈ¿í£¬Ê×Ìõ·Ö¸ôÏߺÍÄ©Ìõ·Ö¸ôÏßÓôÖÏߣ¨ÍƼö¸ß¶ÈΪ0. 35 mm£©£¬ÖмäµÄ·Ö¸ôÏßÓÃϸÏߣ¨ÍƼö¸ß¶ÈΪ0. 25 mm£©¡£Ê×Ìõ·Ö¸ôÏßλÓÚ°æ¼ÇÖеÚÒ»¸öÒªËØÖ®ÉÏ£¬Ä©Ìõ·Ö¸ôÏßÓ빫ÎÄ×îºóÒ»ÃæµÄ°æÐÄϱßÔµÖØºÏ¡£
7.4.2 ³ËÍ»ú¹Ø
ÈçÓгËÍ»ú¹Ø£¬Ò»°ãÓÃ4ºÅ·ÂËÎÌå×Ö£¬ÔÚÓ¡·¢»ú¹ØºÍÓ¡·¢ÈÕÆÚÖ®ÉÏÒ»ÐС¢×óÓÒ¸÷¿ÕÒ»×Ö±àÅÅ¡£"³ËÍ"¶þ×Öºó¼ÓÈ«½ÇðºÅºÍ³ËÍ»ú¹ØÃû³Æ£¬»ØÐÐʱÓëðºÅºóµÄÊ××Ö¶ÔÆë£¬×îºóÒ»¸ö³ËÍ»ú¹ØÃû³Æºó±ê¾äºÅ¡£
ÈçÐè°ÑÖ÷ËÍ»ú¹ØÒÆÖÁ°æ¼Ç£¬³ý½«"³ËÍ"¶þ×Ö¸ÄΪ"Ö÷ËÍ"Í⣬±àÅÅ·½·¨Í¬³ËÍ»ú¹Ø¡£¼ÈÓÐÖ÷ËÍ»ú¹ØÓÖÓгËÍ»ú¹ØÊ±£¬Ó¦µ±½«Ö÷ËÍ»ú¹ØÖÃÓÚ³ËÍ»ú¹ØÖ®ÉÏÒ»ÐУ¬Ö®¼ä²»¼Ó·Ö¸ôÏß¡£
7.4.3 Ó¡·¢»ú¹ØºÍÓ¡·¢ÈÕÆÚ
Ó¡·¢»ú¹ØºÍÓ¡·¢ÈÕÆÚÒ»°ãÓÃ4ºÅ·ÂËÎÌå×Ö£¬±àÅÅÔÚÄ©Ìõ·Ö¸ôÏßÖ®ÉÏ£¬Ó¡·¢»ú¹Ø×ó¿ÕÒ»×Ö£¬Ó¡·¢ÈÕÆÚÓÒ¿ÕÒ»×Ö£¬Óð¢À²®Êý×Ö½«Äê¡¢Ô¡¢ÈÕ±êÈ«£¬Äê·ÝÓ¦±êÈ«³Æ£¬Ô¡¢ÈÕ²»±àÐé루¼´1²»±àΪ01£©£¬ºó¼Ó"Ó¡·¢"¶þ×Ö¡£
°æ¼ÇÖÐÈçÓÐÆäËûÒªËØ£¬Ó¦µ±½«ÆäÓëÓ¡·¢»ú¹ØºÍÓ¡·¢ÈÕÆÚÓÃÒ»Ìõϸ·Ö¸ôÏ߸ô¿ª¡£ 7.5 Ò³Âë
Ò»°ãÓÃ4ºÅ°ë½ÇËÎÌå°¢À²®Êý×Ö£¬±àÅÅÔÚ¹«ÎİæÐÄϱßԵ֮ϣ¬Êý×Ö×óÓÒ¸÷·ÅÒ»ÌõÒ»×ÖÏߣ»Ò»×ÖÏßÉÏ¾à°æÐÄϱßÔµ7 mm.µ¥Ò³Âë¾ÓÓÒ¿ÕÒ»×Ö£¬Ë«Ò³Âë¾Ó×ó¿ÕÒ»×Ö¡£¹«Îĵİæ¼ÇҳǰÓпհ×Ò³µÄ£¬¿Õ°×Ò³ºÍ°æ¼ÇÒ³¾ù²»±àÅÅÒ³Âë¡£¹«Îĵĸ½¼þÓëÕýÎÄÒ»Æð×°¶©Ê±£¬Ò³ÂëÓ¦µ±Á¬Ðø±àÅÅ¡£
8 .¹«ÎÄÖеĺáÅűí¸ñ
A4Ö½Ð͵ıí¸ñºáÅÅʱ£¬Ò³ÂëλÖÃÓ빫ÎÄÆäËûÒ³Âë±£³ÖÒ»Ö£¬µ¥Ò³Âë±íÍ·ÔÚ¶©¿ÚÒ»±ß£¬Ë«Ò³Âë±íÍ·ÔÚÇпÚÒ»±ß¡£
9. ¹«ÎÄÖмÆÁ¿µ¥Î»¡¢±êµã·ûºÅºÍÊý×ÖµÄÓ÷¨
¹«ÎÄÖмÆÁ¿µ¥Î»µÄÓ÷¨Ó¦µ±·ûºÏGB 3100¡¢GB 3101ºÍGB 3102£¨ËùÓв¿·Ö£©£¬±êµã·ûºÅµÄÓ÷¨Ó¦µ±·ûºÏGB/T 15834,Êý×ÖÓ÷¨Ó¦µ±·ûºÏGB/T 15835.
10£®¹«ÎĵÄÌØ¶¨¸ñʽ
10.1 Ðź¯¸ñʽ
·¢ÎÄ»ú¹Ø±ê־ʹÓ÷¢ÎÄ»ú¹ØÈ«³Æ»òÕ߹淶»¯¼ò³Æ£¬¾ÓÖÐÅŲ¼£¬ÉϱßÔµÖÁÉÏÒ³±ßΪ30mm,ÍÆ¼öʹÓúìɫС±êËÎÌå×Ö¡£ÁªºÏÐÐÎÄʱ£¬Ê¹ÓÃÖ÷°ì»ú¹Ø±êÖ¾¡£
·¢ÎÄ»ú¹Ø±êÖ¾ÏÂ4 mm´¦Ó¡Ò»Ìõºìɫ˫Ïߣ¨ÉÏ´ÖÏÂϸ£©£¬¾àÏÂÒ³±ß20 mm´¦Ó¡Ò»Ìõºìɫ˫Ïߣ¨ÉÏϸÏ´֣©£¬Ïß³¤¾ùΪ170 mm,¾ÓÖÐÅŲ¼¡£
ÈçÐè±ê×¢·ÝºÅ¡¢Ãܼ¶ºÍ±£ÃÜÆÚÏÞ¡¢½ô¼±³Ì¶È£¬Ó¦µ±¶¥¸ñ¾Ó°æÐÄ×ó±ßÔµ±àÅÅÔÚµÚÒ»Ìõºìɫ˫ÏßÏ£¬°´Õշݺš¢Ãܼ¶ºÍ±£ÃÜÆÚÏÞ¡¢½ô¼±³Ì¶ÈµÄ˳Ðò×ÔÉ϶øÏ·ÖÐÐÅÅÁУ¬µÚÒ»¸öÒªËØÓë¸ÃÏߵľàÀëΪ3ºÅºº×ָ߶ȵÄ7/8.
·¢ÎÄ×ֺŶ¥¸ñ¾Ó°æÐÄÓÒ±ßÔµ±àÅÅÔÚµÚÒ»Ìõºìɫ˫ÏßÏ£¬Óë¸ÃÏߵľàÀëΪ3ºÅºº×ָ߶ȵÄ7/8.
±êÌâ¾ÓÖбàÅÅ£¬ÓëÆäÉÏ×îºóÒ»¸öÒªËØÏà¾à¶þÐС£
µÚ¶þÌõºìɫ˫ÏßÉÏÒ»ÐÐÈçÓÐÎÄ×Ö£¬Óë¸ÃÏߵľàÀëΪ3ºÅºº×ָ߶ȵÄ7/8.
Î÷ºþ¹ú¼Ê¹ÙÍø²»ÏÔʾҳÂë¡£
°æ¼Ç²»¼ÓÓ¡·¢»ú¹ØºÍÓ¡·¢ÈÕÆÚ¡¢·Ö¸ôÏߣ¬Î»ÓÚ¹«ÎÄ×îºóÒ»Ãæ°æÐÄÄÚ×îÏ·½¡£ 10.2 ÃüÁÁ¸ñʽ
·¢ÎÄ»ú¹Ø±êÖ¾ÓÉ·¢ÎÄ»ú¹ØÈ«³Æ¼Ó"ÃüÁî"»ò"Áî"×Ö×é³É£¬¾ÓÖÐÅŲ¼£¬ÉϱßÔµÖÁ°æÐÄÉϱßԵΪ20 mm,ÍÆ¼öʹÓúìɫС±êËÎÌå×Ö¡£
·¢ÎÄ»ú¹Ø±ê־ϿնþÐоÓÖбàÅÅÁîºÅ£¬ÁîºÅÏ¿նþÐбàÅÅÕýÎÄ¡£
Ç©·¢ÈËÖ°Îñ¡¢Ç©ÃûÕºͳÉÎÄÈͮ򵀱àÅżû7. 3. 5. 3. 10.3 ¼ÍÒª¸ñʽ
¼ÍÒª±êÖ¾ÓÉ"XXXXX¼ÍÒª"×é³É£¬¾ÓÖÐÅŲ¼£¬ÉϱßÔµÖÁ°æÐÄÉϱßԵΪ35 mm,ÍÆ¼öʹÓúìɫС±êËÎÌå×Ö¡£
±ê×¢³öϯÈËÔ±Ãûµ¥£¬Ò»°ãÓÃ3ºÅºÚÌå×Ö£¬ÔÚÕýÎÄ»ò¸½¼þ˵Ã÷Ï¿ÕÒ»ÐÐ×ó¿Õ¶þ×Ö±àÅÅ"³öϯ"¶þ×Ö£¬ºó±êÈ«½ÇðºÅ£¬Ã°ºÅºóÓÃ3ºÅ·ÂËÎÌå×Ö±ê×¢³öϯÈ˵¥Î»¡¢ÐÕÃû£¬»ØÐÐʱÓëðºÅºóµÄÊ××Ö¶ÔÆë¡£
±ê×¢Çë¼ÙºÍÁÐϯÈËÔ±Ãûµ¥£¬³ýÒÀ´ÎÁíÆðÒ»Ðв¢½«"³öϯ"¶þ×Ö¸ÄΪ"Çë¼Ù"»ò"ÁÐϯ"Í⣬±àÅÅ·½·¨Í¬³öϯÈËÔ±Ãûµ¥¡£
¼ÍÒª¸ñʽ¿ÉÒÔ¸ù¾Ýʵ¼ÊÖÆ¶¨¡£
11.ʽÑù
A4Ð͹«ÎÄÓÃÖ½Ò³±ß¼°°æÐijߴç¼ûͼ1£»¹«ÎÄÎ÷ºþ¹ú¼Ê¹ÙÍø°æÊ½¼ûͼ2£»ÁªºÏÐÐÎĹ«ÎÄÎ÷ºþ¹ú¼Ê¹ÙÍø°æÊ½1¼ûͼ3£»ÁªºÏÐÐÎĹ«ÎÄÎ÷ºþ¹ú¼Ê¹ÙÍø°æÊ½2¼ûͼ4£»¹«ÎÄĩҳ°æÊ½1¼ûͼ5£»¹«ÎÄĩҳ°æÊ½2¼ûͼ6£»ÁªºÏÐÐÎĹ«ÎÄĩҳ°æÊ½1¼ûͼ7£»ÁªºÏÐÐÎĹ«ÎÄĩҳ°æÊ½2¼ûͼ8£»¸½¼þ˵Ã÷Ò³°æÊ½¼ûͼ9£»´ø¸½¼þ¹«ÎÄĩҳ°æÊ½¼ûͼ10£»ÐꝏñʽÎ÷ºþ¹ú¼Ê¹ÙÍø°æÊ½¼ûͼ11£»ÃüÁÁ¸ñʽÎ÷ºþ¹ú¼Ê¹ÙÍø°æÊ½¼ûͼ12¡£
ͼ1£ºA4Ð͹«ÎÄÓÃÖ½Ò³±ß¼°°æÐijߴç¡ý¡ý

ͼ2£º¹«ÎÄÎ÷ºþ¹ú¼Ê¹ÙÍø°æÊ½¡ý¡ý

ͼ3£ºÁªºÏÐÐÎĹ«ÎÄÎ÷ºþ¹ú¼Ê¹ÙÍø°æÊ½1¡ý¡ý

ͼ4£ºÁªºÏÐÐÎĹ«ÎÄÎ÷ºþ¹ú¼Ê¹ÙÍø°æÊ½2¡ý¡ý

ͼ5£º¹«ÎÄĩҳ°æÊ½1¡ý¡ý

ͼ6£º¹«ÎÄĩҳ°æÊ½2¡ý¡ý

ͼ7£ºÁªºÏÐÐÎĹ«ÎÄĩҳ°æÊ½1¡ý¡ý

ͼ8£ºÁªºÏÐÐÎĹ«ÎÄĩҳ°æÊ½2¡ý¡ý

ͼ9£º¸½¼þ˵Ã÷Ò³°æÊ½¡ý¡ý

ͼ10£º´ø¸½¼þ¹«ÎÄĩҳ°æÊ½¡ý¡ý

ͼ11£ºÐꝏñʽÎ÷ºþ¹ú¼Ê¹ÙÍø°æÊ½¡ý¡ý

ͼ12£ºÃüÁÁ¸ñʽÎ÷ºþ¹ú¼Ê¹ÙÍø°æÊ½¡ý¡ý
